Schnelles Bett gebaut DIY
Was braucht man als Allererstes um seinen Bus/Transporter/Kastenwagen zum Camper auszubauen? Ein Bett. Irgendwo muss man ja Schlafen, um sich endlich auch dem beliebten Vanlife, Freistehen oder Campen widmen zu können. Es gibt unzählige Varianten, vom kleinen Kombi mit Dachzelt bis hin zum riesigen, alten, amerikanischen Schulbus mit Himmelbett. Wir möchten Euch eine Variante vorstellen, die nicht nur schnell gebaut, sondern auch schnell aufgebaut ist und für sehr viele Fahrzeugmodelle eine gute Option bietet. Wir sind der Meinung, dass mit diesem Konzept ein T4 oder ähnliches Fahrzeug optimal ausgenutzt wird.
Mit den Drehkonsolen unter den Vordersitzen ist trotz großem gemütlichem Bett jede Menge Platz vor der Küche
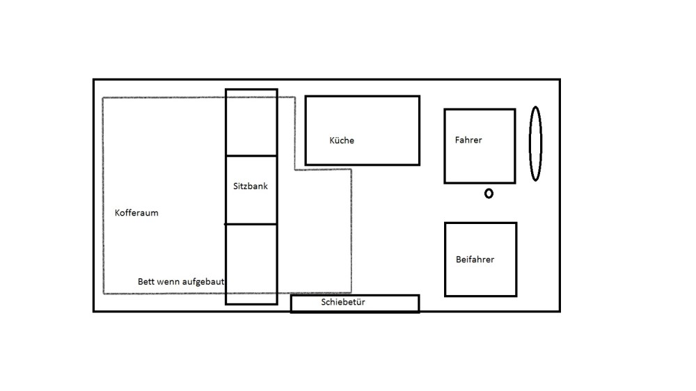
Basis ist eine klappbare Rückbank, auf die, in unserem Fall, schlichtweg eine Sperrholz- oder Multiplexplatte gelegt wird. Im Kofferraum wird das ganze während der Fahrt verstaut, die Verbindung der Liegeflächen wird durch einen einfach Mechanismus garantiert. Hier mal ein Bild von unserem Grundriss, der neben sehr viel Stauraum im Kofferaum unter dem Bett eine große Liegefläche und fünf Sitze bietet:
Grundriss
Die Liegefläche die auf der umgeklappten Sitzbank zu liegen kommt und die Polster werden während der Fahrt einfach hinter der hinteren Sitzgruppe verstaut. Möchte man schlafen, dann klappt man einfach die Bank um und hakt die mobile Platte unter die feste Platte im Kofferraum. Die Küche verhindert, dass das untere Polster wegrutscht:
Wer es ein bisschen komfortabler möchte, kann auch einen ausziehbaren Lattenrost bauen, das ist dann schon etwas aufwändiger. Man sollte sich allerdings hüten, während der Reise allzu viel auf der Rückbank zu lagern. Bei uns sammelte sich da immer ein Haufen, vornehmlich aus Klamotten – und der Haufen wächst. Das liegt nämlich in der Natur des Haufens 😉 Bedenkt auch, dass, solltet ihr mit Kindern unterwegs sein, ihr jedesmal den oder die Kinderstitz/e abbauen müsst. Ein Hochdach schafft da mehr Komfort, aber man vermisst es erst, wenn man es mal hatte. Bevor wir eines angebaut hatten, war das Reisegefühl auch schon wunderbar und wir hatten unvergessliche Erlebnisse, z.B. in den Pyrenäen.


